功能:
消防應急照明和疏散指示系統由控制器(主機)、集中電源(供電),分配電裝置(分機)和燈具(疏散指示燈、應急照明燈)等幾部分組成。該系統配合火災報警控制器的使用,在危急時刻,能夠快速針對風向、就近出口、火災的走勢、人群密度做出分析,給出安全的疏散路徑指示,智能打開消防應急標志燈的指示方向以及應急照明燈,幫助建筑內的人群實時地選擇逃生路線,指引安全逃生方向,保障群眾的人身安全,為各商家擔心的安全問題解決了后顧之憂。
應用范圍:
適用于機場、軌道交通、隧道、客運樞紐、醫院、學校、體育館、展覽館、星級酒店、高端商業樓盤等場所。
訂貨范例:
具體型號:A-BLJC-2OEⅡ1W-A420
技術要求:安全出口、吊掛、雙面顯示
通訊協議:無
輔助電源:DC36V
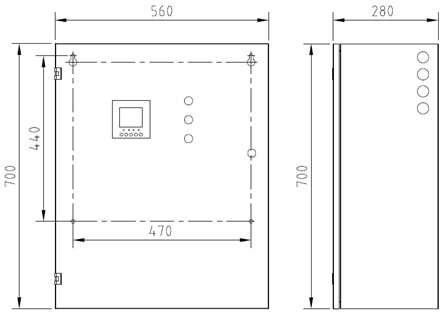
應急照明控制器
輸入電源:AC220V/50Hz,
備用電源:閥控密封式鉛酸蓄電池,容量12V/12Ah,2節
應急時間:應急時間;切換時間
配置:工業PC板,2G內存,32G固態硬盤存儲
顯示操作:17寸液晶顯示器,LED指示燈;人機接口為鼠標鍵盤,按鍵;
打印機:熱敏打印機
下行總線:4個CAN總線:連接分配電裝置與集中電源
上行總線:
1個CAN:預留,可用于連接火災報警控制器或其他用途;
1個RS485:預留,可用于連接火災報警控制器或其他用途;
1個RS232:預留,可用于連接火災報警控制器或其他用途;
1個以太網口:預留,可用于連接火災報警控制器或其他用途。
外殼材質:金屬
防護等級:IP30
運行溫度:0℃-45℃
應急照明集中電源
輸入電源:AC220V/50Hz
輸出電源:DC36V,0.5kW
備用電源:閥控密封式鉛酸蓄電池,容量12V/38Ah,4節
本機功耗:10W
應急時間:應急時間;切換時間
顯示:點陣液晶顯示,LED指示燈
操作方式:按鍵,開關操作
通訊總線:上行CAN
外殼材質:金屬
防護等級:IP30
運行溫度:-10℃-45℃
安裝方式:壁掛
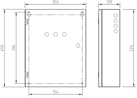
應急照明分配電裝置
輸入電源:DC36V,0.5kW
輸出電源:回路輸出電壓DC36V,電流≤2A
通訊回路:5回路
本機功耗:10W
應急時間:應急時間;切換時間
顯示:LED指示(主電、應急、故障)
通訊總線:上行CAN/下行ABUS
外殼材質:金屬
防護等級:IP30
運行溫度:-10℃-45℃
安裝方式:壁掛
應急照明集中電源

應急照明分配電裝置

應急照明控制器

應急照明集中電源

消防應急照明燈具和標志燈具






